29 Kolora Crescent, Mount Eliza VIC 3930

Inspection by appointment.
Discrete and restrained from the street yet expansive beyond, this family-focused home impresses as much for its proportions as its atmosphere, delivering a tangible sense of comfort and warmth from the moment you step inside, with light-filled spaces that naturally gravitate toward a private outdoor playground for all ages.
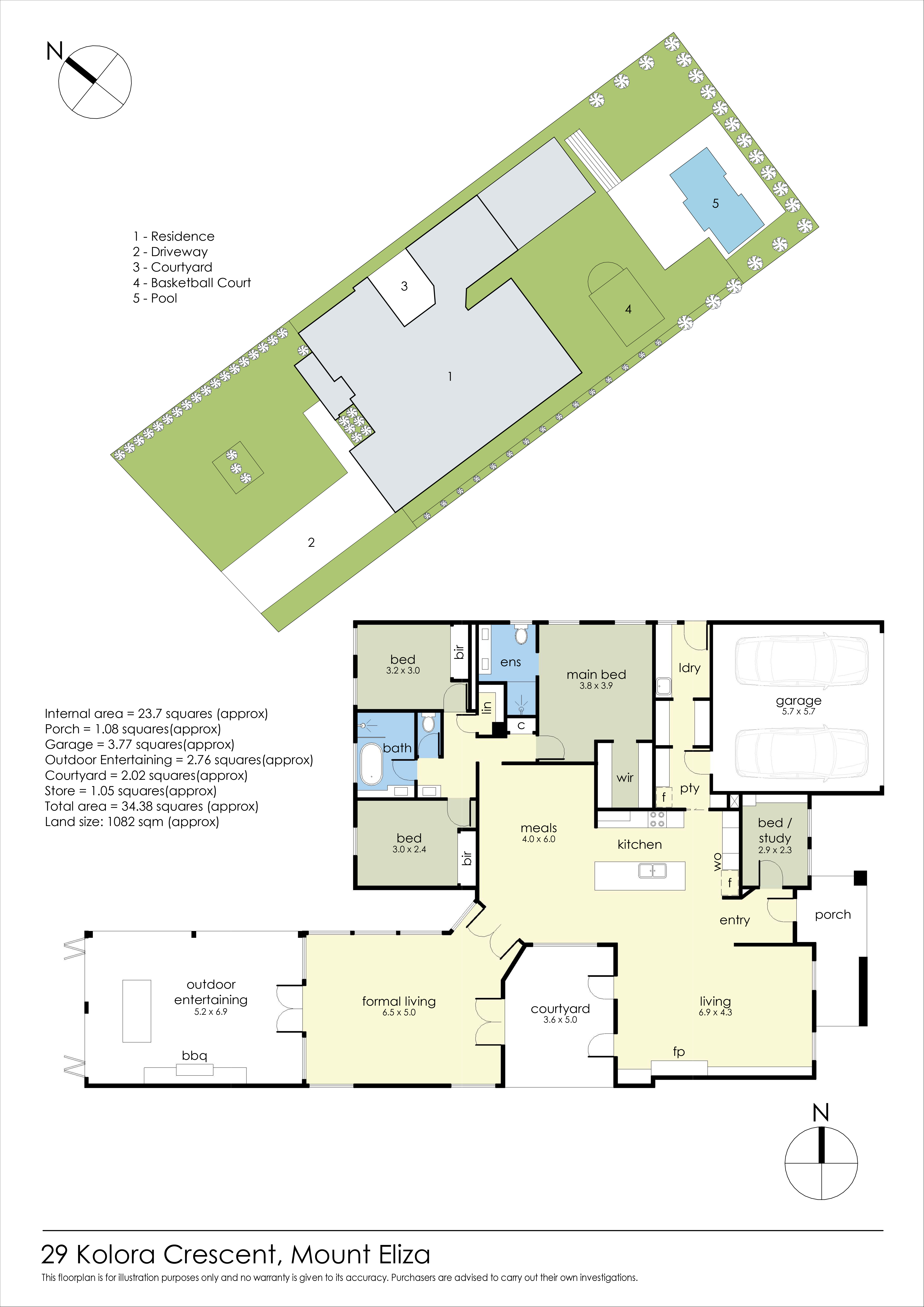
At the centre of the culinary quarters, a striking terrazzo-style stone island is paired with Miele ovens, a casual breakfast nook, and extensive cabinetry extending into a galley-style butler’s pantry, mud room and laundry, forming a concealed utility wing that manages the daily mess without disrupting the calm feel of the single-level design.
Oriented around a tranquil, north-facing courtyard that invites natural light and air flow, the home offers two distinct living zones, one a formal fireside retreat, the other a casual family space spilling out to an impressive entertainer’s pavilion, fully appointed for hosting at any scale. Unmatched in amenity, its coastal palette meets a suite of integrated appliances including a Fisher & Paykel fridge/freezer, dishwasher, barbecue, wine fridge and sink, ensuring every element of entertaining unfolds seamlessly without interruption or the need to return inside.
Extending the experience across 1,082 sqm (approx), a mod grass basketball court rises to meet a feature-lit mineral pool with a waterfall, while a separate play area ensures children are just as considered, all set within a low-maintenance landscape that draws a crowd on repeat.
Three robed bedrooms plus study/4th bedroom speak to the home’s family-first intentions, with two positioned to share a central bathroom with a freestanding bath and an adjoining powder room, while the primary suite enjoys the privilege of a fitted walk-in robe and ensuite with twin vanities.
Reverse cycle heating and cooling, ducted vacuuming, a double garage, solar panels, garden shed, an entrance home office and ample off-street parking are afforded by the home’s elevated rear position on the block overlooking Earimil Creek Reserve, with Moondah Beach, the village and a selection of highly regarded schools including Mount ELiza Primary, Kunyung Primary, Toorak College and Peninsula Grammar all close by, and freeway links providing direct connectivity to both the CBD and the wider Peninsula.
Disclaimer:
In preparing this information, Coastal Agents has relied in good faith upon information provided by third parties and has made best endeavours to ensure that the information is accurate. However, the accuracy of the information provided to you (whether written or verbal) cannot be totally guaranteed. If you are considering the purchase of this property, please make all necessary enquiries to satisfy yourself that all information is accurate.
Breony Tarrant
Liz Todd